
M&R迈德锐起重生产的JKBK柔性轻型组合式悬挂起重机的起重量在125kg-2000kg。JKBK柔性轻型组合式悬挂起重机包括JKBK-D单轨悬挂起重机、JKBK-LD单梁悬挂起重机、JKBK-LS双梁悬挂起重机、JKBK-LSS伸缩梁悬挂起重机、JKBK-LM堆垛机等各种形式,应用范围极广,尤其适用于现代化生产输送线。
产品特点:
1、安装尺寸合理、自重轻
JKBK 柔性单梁悬挂起重机由KBK标准组件组成,能使您快速可靠地实现特定区域内的物料输送以及各种部件的精确定位。
2、经济高效
JKBK 单梁悬挂起重机可以简单地悬挂于建筑屋顶或上部结构上,起重机轨道无需额外的辅助支撑,无论是服务于车间的部分或者全部,都可以简单可靠地安装,成本较低。
3、安全可靠
由于设备自重轻、运行小车操作轻便,JKBK单梁悬挂起重机可以轻松地实现手动移动,能够快速可靠地输送那些粗大笨重的工件。
JKBK单梁悬挂起重机:1.最大起重量可达:1000kg
2.最大跨度可达:6m

JKBK柔性轻型组合式悬挂起重机的产品特点概述如下:
1、可靠性好、稳定性高
JKBK柔性轻型组合式悬挂起重机系统的组成部件全部是标准模块,可以保证大批量、高质量生产,因而系统十分可靠;系统模块的主体是三种规格的冷轧型材,强度大、刚性好、自重轻,保证了系统的稳定性。
2、适应力强
JKBK悬挂起重机系统可根据工厂各工位的需要,灵活地设计安装。从定点运送到高准确度的多点、多节拍的自动化输送线,都能随意组合而成。可用于新设计的厂房,也可用于系统的改造和延伸。
3、安装方便、经济高效
JKBK悬挂起重机系统的安装调试很方便,JKBK型材及各标准模块之间只需用螺栓连接即可使用,可节省工厂的空间和面积,从而降低能耗,提高企业效益。系统可以手动操作,也可以实现自动、半自动操作,运行高效。
JKBK柔性轻型组合式悬挂起重机包括JKBK-D单轨悬挂起重机、JKBK-LD单梁悬挂起重机、JKBK-LS双梁悬挂起重机、JKBK-LSS伸缩梁悬挂起重机、JKBK-LM堆垛机等各种形式,应用范围极广,尤其适用于现代化生产输送线。 left

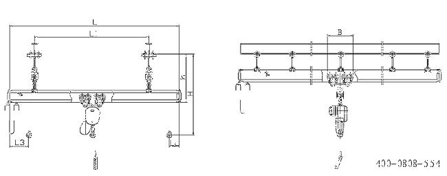
| 尺寸mm 起重量kg | 125 | 250 | 500 | 1000 |
|---|---|---|---|---|
| L | 9000 | 8000 | 6500 | 4000 |
| L1 | 8500 | 7500 | 6000 | 3500 |
| L2 | 107 | 107 | 232 | 232 |
| L3 | 487 | 437 | 512 | 412 |
| B | 173 | 173 | 423 | 423 |
| H | 1200 | 1220 | 1300 | 1430 |
| h | 730 | 730 | 730 | 730 |
|
|
|
|
|---|
扫一扫,微信咨询 工作时间:周一至周五 9:00-18:00
联系人:刘经理
手机:189-9432-0878
邮件:sales@mrcranes.cn
地址:江苏省苏州市虎丘区华山路151号
